Millbay Road, Plymouth

Millbay Road, Plymouth

,

PL1 3EG

£1,800 pcm
£1,800 pcm

34594071

  • Ref: 34594071
  • Type: House
  • Availability: Let Agreed
  • Bedrooms: 4
  • Bathrooms: 2
  • Reception Rooms: 2
  • Council Tax Band: D
  • Furnished: Unfurnished
  • Deposit: £2,076
  • Available: Now
Let Agreed
Placeholder

Overview

Property Features

  • Modern Mid Terrace Townhouse
  • 4 Bedrooms
  • Arranged over 4 Storeys
  • Secure Underground Parking
  • Millbay Location
  • Panoramic Sea and Marina Views
  • Roof Terrace & Balcony
  • Unfurnished
  • Available Now
  • Council Tax Band D

Type & Rooms

House

Type

4

Bedrooms

2

Bathrooms

2

Reception Rooms

Property Description

Property Summary

DC Lane are delighted to showcase this superb South West facing mid terrace townhouse in Cargo, Millbay - An impressive purpose built development situated close to the waterfront within Millbay, Plymouth’s coastal Quarter. Offering residents the opportunity to enjoy city living and a waterside lifestyle with a short walk to the bustling city centre and close to King Point Marina, Plymouth’s historic Hoe and the ever popular Royal William Yard with it’s diverse range of restaurants, cafes and bars.

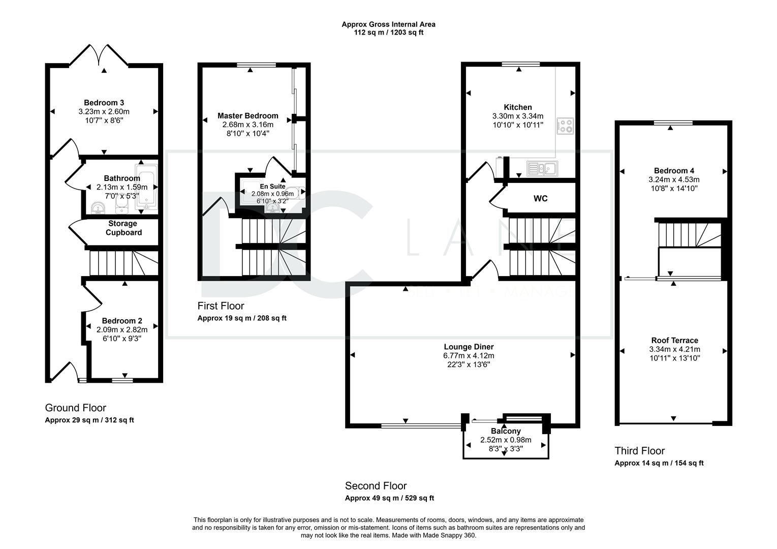
Offering ideal family and entertaining space this splendid property is arranged over four storeys and immaculately presented. Entrance on the ground floor offers a double bedroom with rear courtyard garden access, a further bedroom and cloakroom/wc. Stairs rise to the first floor with the master bedroom with built in wardrobes and en suite shower room. The next floor offers a lounge opening onto a balcony boasting views of the marina and surrounding area. There is a well appointed contemporary kitchen with integrated appliances and a WC. The upper floor features another double bedroom/reception room opening out onto the most incredible sun terrace with spectacular elevated views towards Plymouth Sound and beyond to Drake’s Island, the perfect relaxing and entertaining space.

There is secure underground parking for 1 car and additional parking available via on street permit

There is a low maintenance rear garden with rear gate access.

The epitome of waterside and city living, the enviable views complete the appeal of this superb townhouse and a viewing is highly recommended.

Available NOW Unfurnished.

Room Details

Map

Street View

Disclaimer

DC Lane – PL1 endeavour to maintain accurate depictions of properties in Virtual Tours, Floor Plans and descriptions, however, these are intended only as a guide and purchasers must satisfy themselves by personal inspection.

Request Your Viewing

Someone from our team will be in touch to arrange a suitable day for you to view the property.

Register for Property Alerts
Property Requirements
Which locations would you consider?
Current Position?